Zum Inhalt springen
Startseite
Firma
Unser Büro
Kontakt Mitarbeiter
Qualifikationen
Bauherrenservice
Energieausweis
Brandschutz Nachweise + Pläne
Projekte
Hochbau
Tief- u. Straßenbau
Industriebau
Tragwerksplanung
Kontakt
Startseite
Firma
Unser Büro
Kontakt Mitarbeiter
Qualifikationen
Bauherrenservice
Energieausweis
Brandschutz Nachweise + Pläne
Projekte
Hochbau
Tief- u. Straßenbau
Industriebau
Tragwerksplanung
Kontakt
Startseite
Projekte
Hochbau
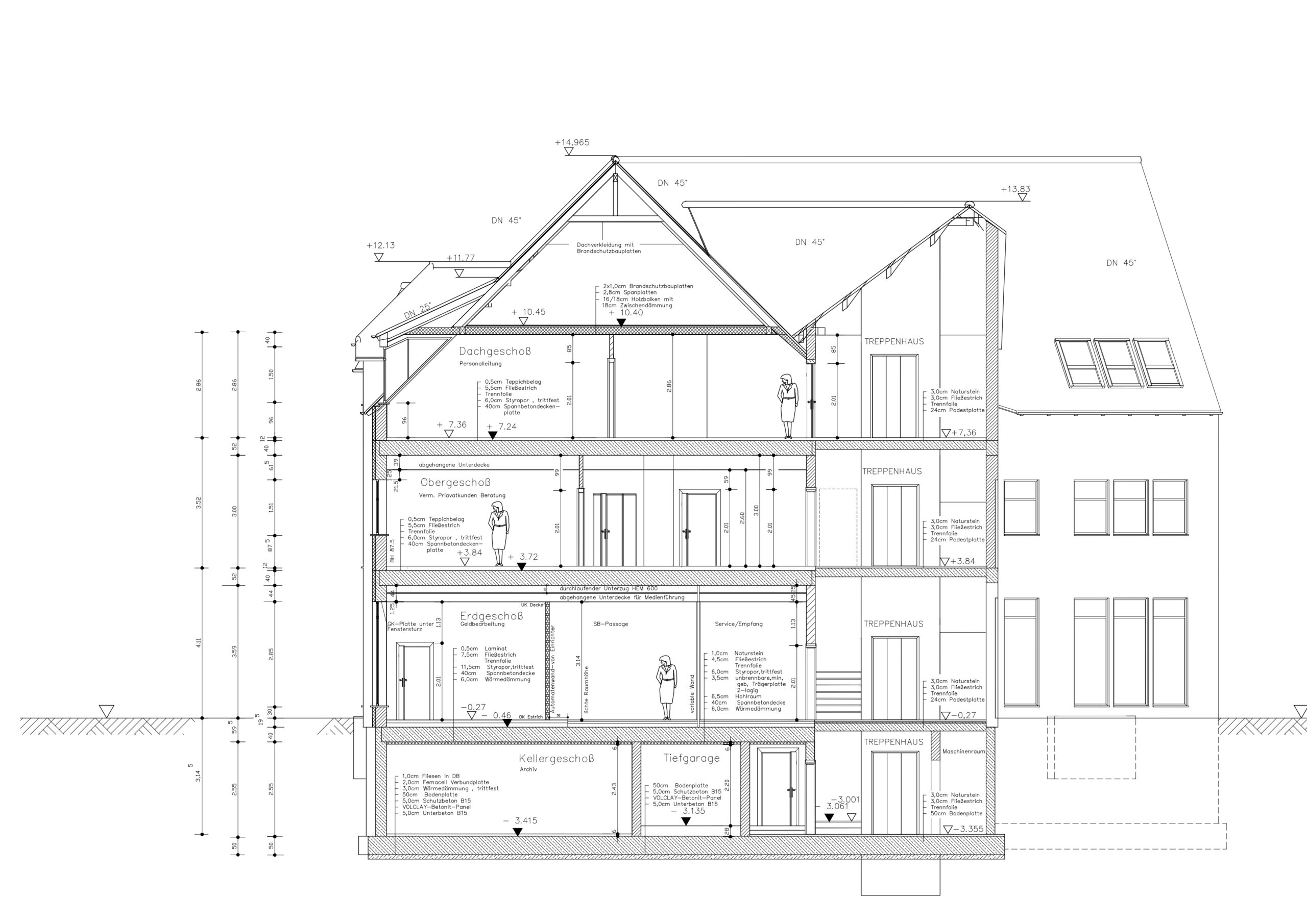
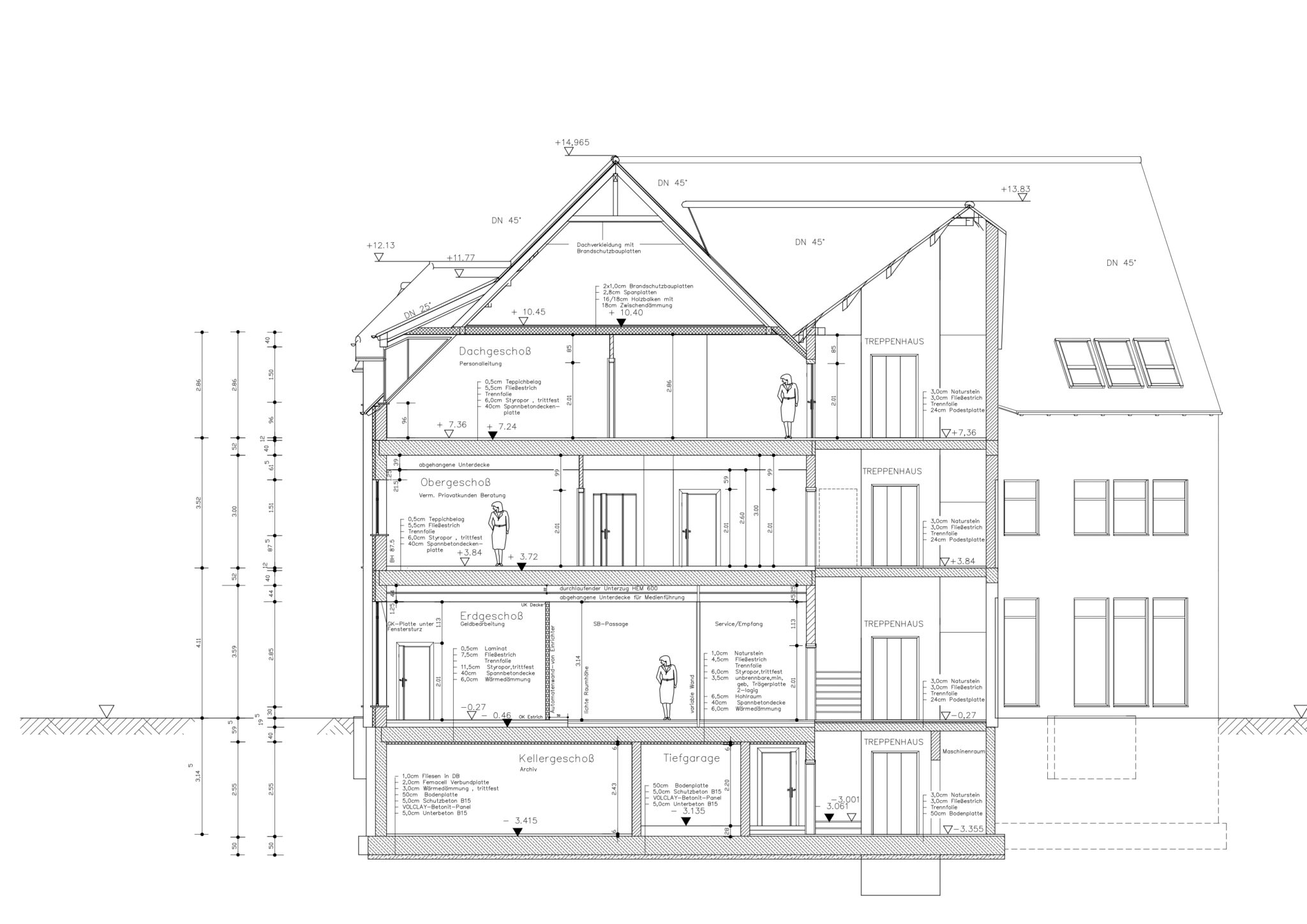
Volksbank Spremberg -Bad Muskau eG
Volksbank Spremberg -Bad Muskau eG
Planungsleistung
Tragwerksplanung
Bautechnische Nachweise
Erstellen der Ausführungsunterlagen
Planung des Innenausbaus
Bauüberwachung, Koordinierung, Abrechnung
Zurück
zurück
weiter
Nächster