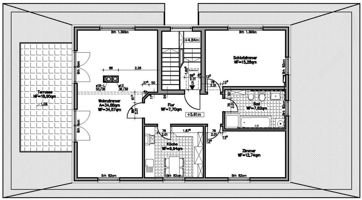
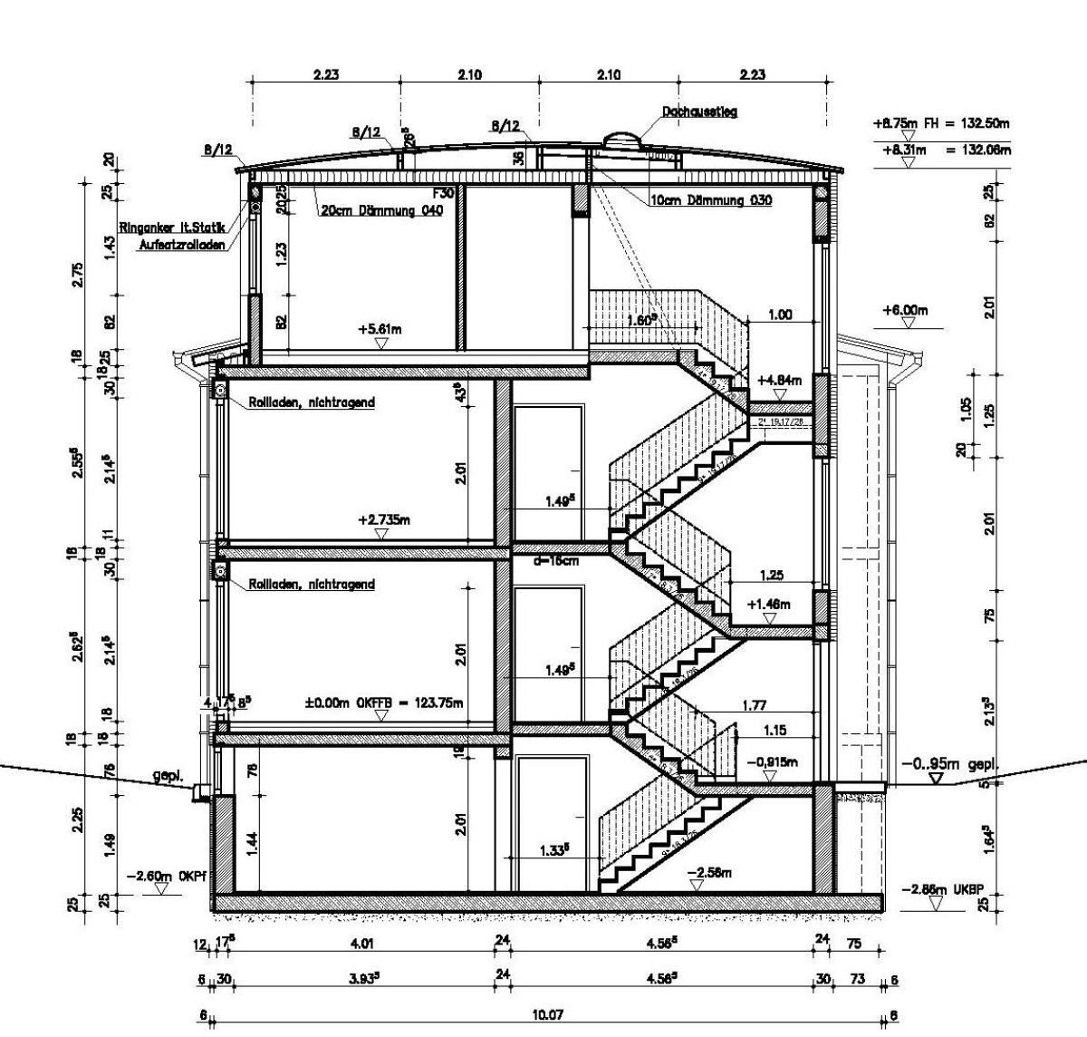
Neudorfer Residenz
„Neudorfer Residenz“ in Spremberg 2 geschossiges Mehrfamilienhaus mit Penthouse und Tiefgarage
- Abmessungen: B= 10m, L= 19m
- 5 Wohnungen mit insgesamt 390m² Wohnfläche unterkellert
- 2 WE je Etage + 1 Penthouse und Tiefgarage
Planungsleistungen
- Entwurfs-, Genehmigungs- und Ausführungsplanung
- Bearbeitung Bauantrag
- Kostenermittlung
- Tragwerksplanung, Wärme-, Brand-, Schallschutzberechnung
- Objektüberwachung
- Planung Außenanlagen
- Bearbeitung u. Antrag auf Abgeschlossenheit








