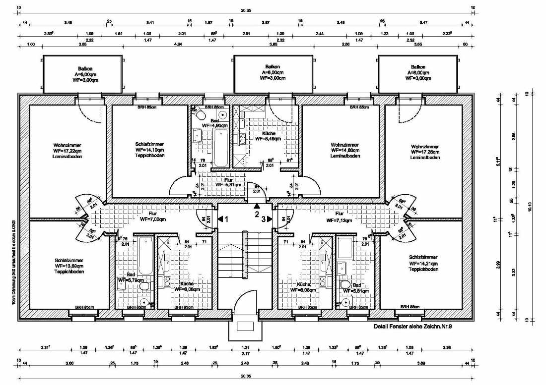
MFH Schlesische Straße
Umbau u. Modernisierung eines zweigeschossigen Mehrfamilienhauses in Spremberg Schlesische Straße
Umbauleistungen
- Anbau von 3 Balkontürmen 2-etagig
- Umbau tragender Innenwände zur kompletten Umgestaltung der Wohnraumstruktur
- Innenausbau nach schall- und brandschutztechnischen Erfordernissen
- Kompletterneuerung aller Installationen der Haustechnik
- Demontage aller alten Schornsteine bis zum Keller
- Demontage und Neubau aller Fenster und Türen
- Sanierung der gesamten Fassade mit Vollwärmeschutz
- Außenanlagen Gehwege, Parkplätze, Wäscheplatz
Planungsleistung
-
Planung der o. g. Bauleistungen vom Entwurf bis zur Übergabe
- Erfassung der vorhandenen Bausubstanz
- Erstellen von Entwürfen mit Variantenuntersuchung
- Kostenermittlung
- Antragsbearbeitungen Baubehörde
- Genehmigungs-, Ausführungs- und Tragwerksplanung
- Statik und Wärme-, Brand- und Schallschutzberechnung


