Firma Höhne Hebezeuge
Neubau einer Werkstatt mit Funktionsbereich in Schwarze Pumpe
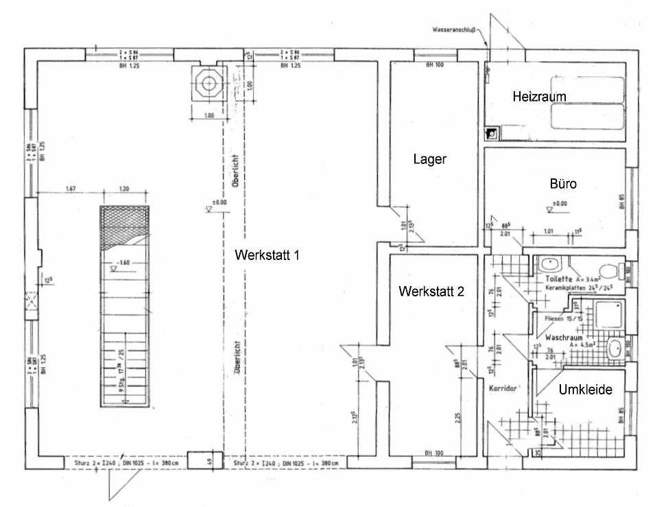
Kurzbeschreibung
- Werkhalle: L= 9,8m, B= 12m, H= 6m mit Arbeitsgrube und Säulenschwenkkran
- Funktionsbereich: L= 7,7m, B= 12m, H= 2,5m beinhaltet Büro-, Lager- und Sozialräume
Planungsleistung
- Planung der o. g. Bauleistungen von Phase 3 bis Phase 9
- Erarbeitung aller Genehmigungs- und Ausführungsunterlagen einschließlich Tragwerksplanung, Wärme-, Schall- und Brandschutznachweis
- Antragsbearbeitung Baubehörde
- Vergabeabwicklung
- Bauüberwachung
Bauleistung
- Gründung Streifenfundamente Beton
- Außenwände Hochlochziegel d= 36,5cm
- Innenwände Hochlochziegel d= 24/17,5/11,5 cm
- Dach 15% geneigtes Satteldach Alutherm-Elemente auf Nagelbrett-bindern
- Fenster Kunststoff, 2-Scheiben-Isolierverglasung
- Türen Kunststoff bzw. Röhrenspan, foliert
- Tore Sectionaltore mit Schlupftür

